Office for rent, Skanstes street, Centrs / 12737€

Location:Rīga, Labais krasts, Centrs
Street:Skanstes
Building type:New project
Premises:17
Floor:6/6 (ir lifts)
Area:1213 m²
Price:12 737 € (10.5 €/m²)
Additional costs:management fee (2.50 €/m²); utility costs; VAT (21%)
Available from:iToday

Property description

Office premises available in the modern business center “Skanste City”!

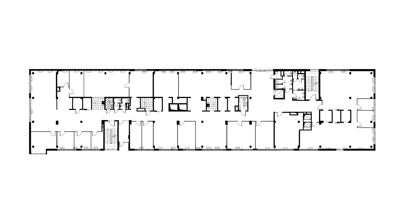
Currently configured as a mix of open space and private office layout, accommodating approximately 80 workstations. The layout can be easily reconfigured and adapted to tenant needs.

The office is located at Skanstes Street 50 and is available immediately.

The premises feature windows on both sides, and from the 6th floor there is a pleasant view overlooking the park, making the office bright and full of natural light.

Photos and layout correspond to the actual office. Available immediately.

Office features:
• Energy-efficient and cost-effective building (BREEAM certified)
• Flexible layout options
• Meeting and conference rooms
• Ventilation / air conditioning / openable windows
• Fully equipped kitchen
• Shower facilities with changing rooms
• On-site security and centralized building management system
• 24/7 access
• Elevators in the building

Location & surroundings:
• Well-maintained and landscaped area
• Free visitor parking (1 hour)
• 1 parking space per 40 m² – EUR 40 + VAT/month
• Heated underground parking available (with EV charging) – EUR 100/month
• E-scooters and car-sharing options nearby
• Convenient public transport access
• Several dining options within the area

Feel free to call or write for more detailed information.

    Property ID number: 67154

    Object on the map

    Diāna Līdaka
    Diāna Līdaka Agent
    Contact the agent:
    • Print