Office for rent, Biķernieku street, Teika / 20400€

Location:Rīga, Labais krasts, Centrs
Street:Biķernieku
Building type:Renovated building
Premises:29
Floor:1/2
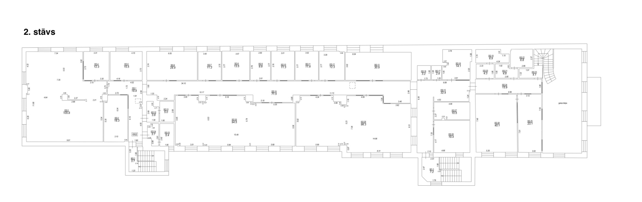
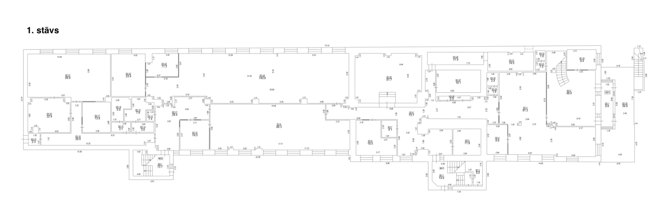
Area:1700 m²
Price:20 400 € (12 €/m²)
Additional costs:management fee; utility costs; VAT (21%)
Available from:iToday

Property description

Office premises after reconstruction.
Suitable for adaptation for a medical company.

Premises with full fit-out according to the tenant’s specifications will be available within 3–4 months.

Stand-alone two-storey building;

Multiple entrances;

Layout can be customized to meet the tenant’s needs;

Ventilation and air conditioning;

Installation of a lift/hoist possible if required;

Spacious parking area;

Excellent location with convenient access in all directions.

Rental rate depends on the level of investment in the reconstruction of the premises.

    Property ID number: 66501

    Object on the map

    Edgars Regzdiņš
    Edgars Regzdiņš Agent
    Contact the agent:
    • Print