Office for rent, Ulmaņa gatve, Mārupe / 9625€

Location:Rīga, Kreisais krasts, Šampēteris
Street:Ulmaņa gatve
Building type:New project
Premises:16
Floor:2/4
Area:875 m²
Price:9 625 € (11 €/m²)
Additional costs:management fee; utility costs; VAT (21%)

Property description

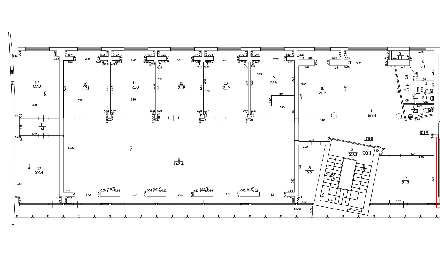
Office near shopping center “Spice”, in the office building “Baltais vējšs”.

2nd and 3rd floors.

Each floor layout consists of an open reception area, 8 separate rooms, 2 open spaces, WC and kitchen.

Ventilation, air conditioning.

Management fee including utilities: during summer months EUR 5/m², during winter months EUR 6/m² + electricity meter.
Free parking in the courtyard.

  • Finishing: final finishing
  • Equipment: air ventilation
  • Building description: facade building
  • Parking lot: free parking
  • Communications: gas heating
  • Security: security in person, video surveillance
Property ID number: 65479

Object on the map

  • Bing map
  • Bing bird eye
  • Openstreet Map
Edgars Regzdiņš
Edgars Regzdiņš Agent
Contact the agent:
  • Print