Iznomā tirdzniecības telpas, Blaumaņa iela, Centrs / 1255€

Atrašanās vieta:Rīga, Labais krasts, Centrs
Iela:Blaumaņa
Ēkas tips:Renovēta pirmskara laika māja
Stāvs:1/6
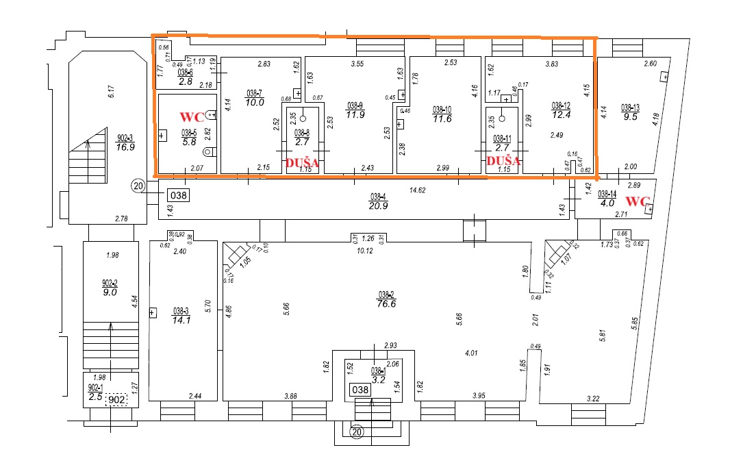
Platība:73.8 m²
Cena:1 255 € (17 €/m²)
Papildus maksājumi:apsaimniekošanas maksa (1.00 €/m²); komunālie maksājumi; nekustamā īpašuma nodoklis
Drošības depozīts:1260 €
Minimālais īres termiņš:36 mēneši
Pieejams no:iŠodienas

Īpašuma apraksts

Telpas skaistumkopšanas/masāžas salonam reprezentablā vietā.

Telpu raksturojums:
- Kopējā platība: 73.8 m²
- Četri kabineti, uz diviem kabinetiem pa vidu kopīga dušsas telpa.
Atsevišķs sanmezgls
- Griestu augstums: ~3,2 m

Aprīkojums un priekšrocības:
- Autonoma gāzes apkure
- Ierīkota ventilācijas un gaisa kondicionēšanas sistēma.

Atsevišķi:
- Apsaimniekošanas maksa: 1 EUR/m²
- Nekustamā īpašuma nodoklis: 1 EUR/m²
- Komunālie maksājumi pēc patēriņa
- parkings pagalmā 1 gab. 75 Eur/mēnesī.


Blaumaņa iela 9 atrodas pašā Rīgas centrā – aktīvā un pieprasītā pilsētvidē ar restorāniem, kafejnīcām, tirdzniecības vietām, pakalpojumu sniedzējiem un birojiem tiešā tuvumā.
Lokācijai raksturīga intensīva gājēju plūsma visas dienas garumā, aktīva vietējo iedzīvotāju kustība, augsta redzamība un laba atpazīstamība. Tā ir iecienīta vieta gan rīdziniekiem, gan pilsētas viesiem.

Ja interesē telpu apskate - rakstiet, zvaniet vai sūtiet ziņu Whatsapā, vienosimies par ērtāko laiku!

  • Apdare: stāvoklis ļoti labs
  • Plānojums: telpas gan izolētas gan caurstaigājamas
  • Ēkas raksturojums: pagalma māja, renovēta māja
  • Atrašanās vieta: liela gājēju plūsma
  • Tirdzniecības platību izm. veids: masāžas salons, skaistumkopšanas salons
  • Komunikācijas: gāzes apkure
  • Drošība: pieejama signalizācija
Īpašuma ID numurs: 66273

Īpašums kartē

  • Bing karte
  • Bing bird eye
  • Openstreet Karte
Dace Levčenko
Dace Levčenko Aģents
Sazināties ar aģentu:
  • Drukāt

Līdzīgi īpašumi