Pārdod namīpašumu, Lielupes iela, Jaundubulti / 706500€785000€Samazināta cena!

Atrašanās vieta:Jūrmala, Jaundubulti
Iela:Lielupes
Platība:2875 m²
Zemes platība:3801 m²
Cena:706 500 € (785 000€) (245.7 €/m²)

Īpašuma apraksts

Kvalitatīva un fundamentāla ēka, kas lieliski piemērota senioru nama, medicīnas centra izveidei vai pārbūvei par dzīvojamiem dzīvokļiem.

Piedāvājums sastāv no:

Zemesgabala, kadastra apz. 13000113202, platība 3 801 m2;
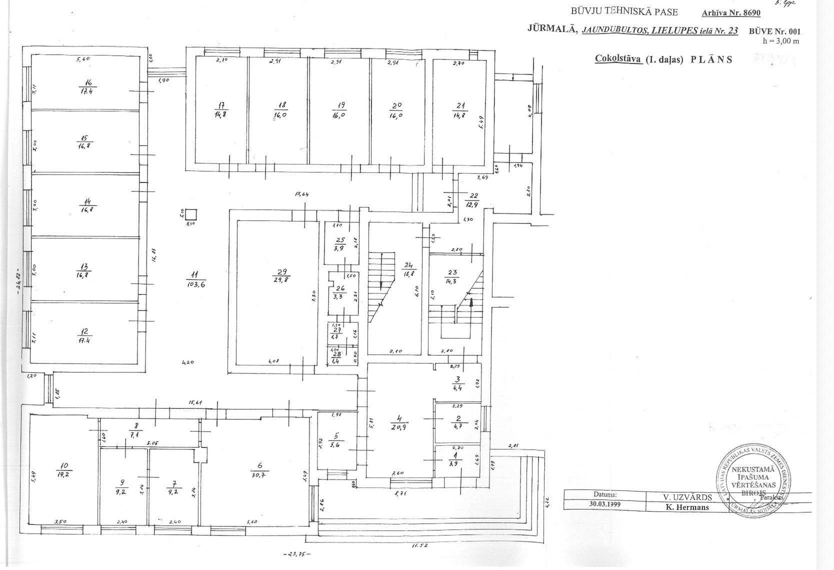
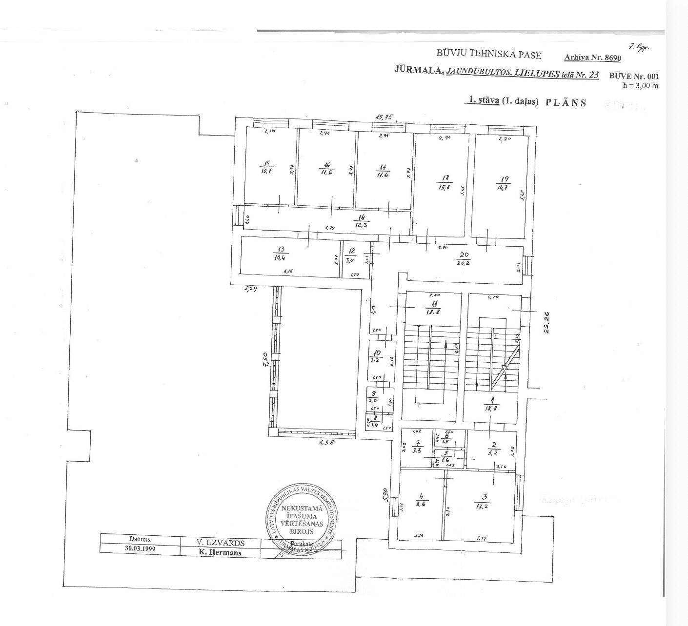
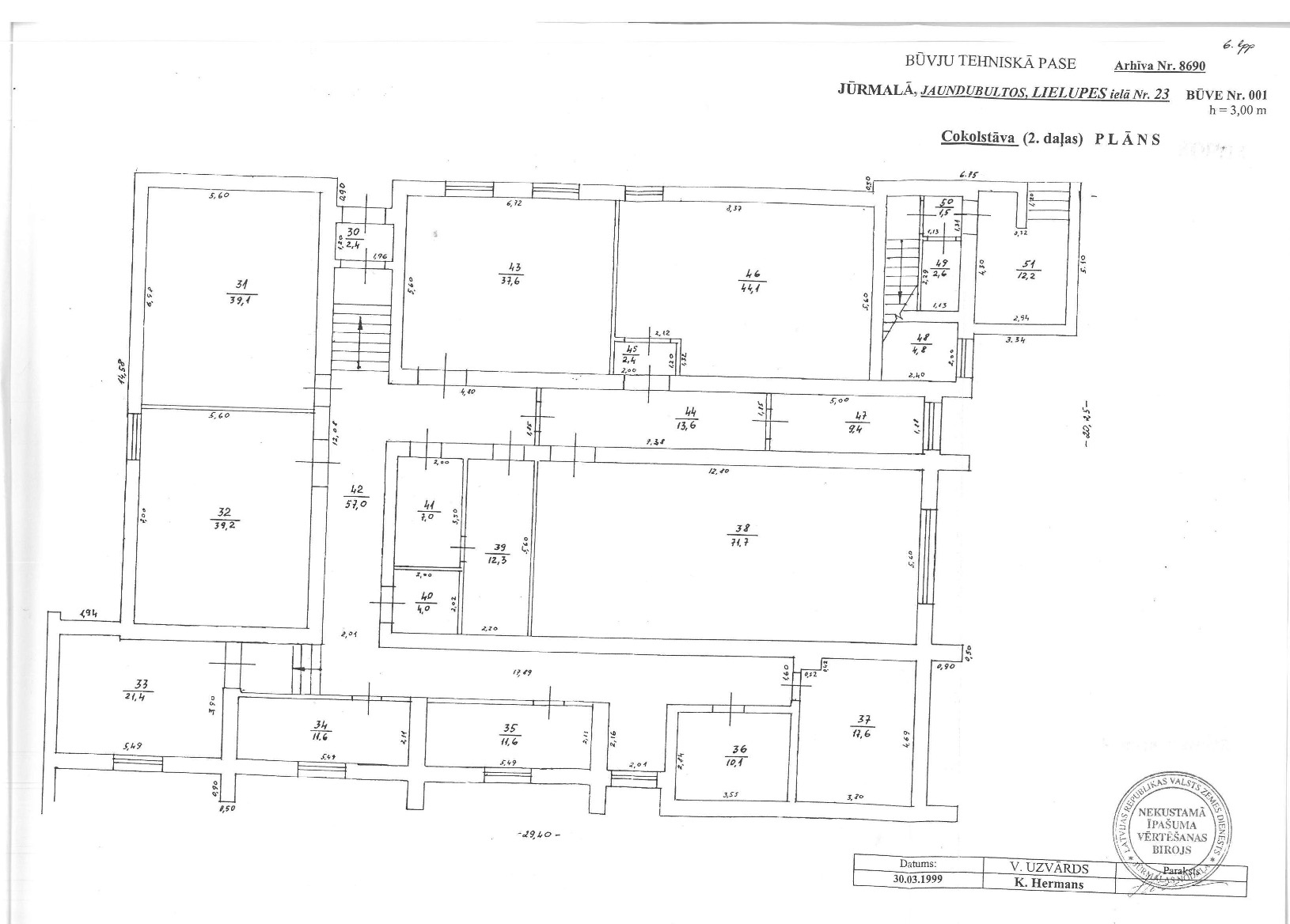
Administratīvās ēkas, kadastra apz. 13000113202001, kopējā platība 2 631,0 m²;
Garāžas ēkas, kadastra apz. 13000113202002, platība 244,0 m².

Iegādei pieejama **komercēka ar plašu zemes gabalu un garāžu.

Īpašuma raksturojums:

+ Plaša administratīvā ēka, būvēta 1999. gadā. Fundamentāla būve no ķieģeļiem un dzelzsbetona paneļiem;
Īpašums atrodas P8 teritorijā;
+ Centrālā apkure, savs siltummezgls, pieejamas pilsētas komunikācijas;
+ 2010. gadā veikts kapitālais remonts, izņemot vienu 2. stāva korpusu (~440,2 m² platībā), kurā remontdarbi nav veikti;
+ Garāžas ēkai ir atvērta tipa plānojums ar augstiem griestiem;
+ Telpu griestu augstums no 3 līdz 4 m;
+ Pieejams īpašuma vērtējums.

Tehniskais stāvoklis:

Īpašuma tehniskais stāvoklis ir samērā labs. Remonts veikts pirms vairāk nekā 15 gadiem. Apdares materiāli ir vienkāršas kvalitātes, vietām novērojamas nolietojuma pazīmes.

+ Sienas – krāsotas / flīzētas / tapetētas;
+ Grīdas – flīzes / linolejs;
+ Griesti – iekārtie / krāsoti;
+ Durvis – MDF, PVC ar stiklojumu, alumīnija konstrukcijas;
+ Logi – dubultie PVC.

    Īpašuma ID numurs: 66741

    Īpašums kartē

    Egils Skujiņš
    Egils Skujiņš Aģents
    Sazināties ar aģentu:
    • Drukāt