Pārdod māju, Steigas iela, Dārzciems / 400000€

Atrašanās vieta:Rīga, Labais krasts, Dārzciems
Iela:Steigas
Mēbeles:Mēbelēts un pilnībā aprīkots dzīvošanai
Istabas:4
Platība:246 m²
Zemes platība:900 m²
Cena:400 000 € (1 626 €/m²)

Īpašuma apraksts

Liela māja + viesu māja ar pirti – plašs īpašums ar daudz iespējām.

Piedāvājumā unikāls un plašs īpašums ar divām dzīvojamām mājām, kas sniedz lieliskas iespējas gan komfortablai ģimenes dzīvei, gan papildu ienākumiem no īres. Īpašums ir pārdomāti plānots, ar plašām telpām, vairākām dzīvojamām zonām un labiekārtotu teritoriju.

Īpaši piemērots:
• lielai ģimenei vai vairākām paaudzēm
• dzīvošanai un izīrēšanai vienlaikus
• viesu mājas vai īres dzīvokļu izveidei
• uzņēmējdarbībai no mājām

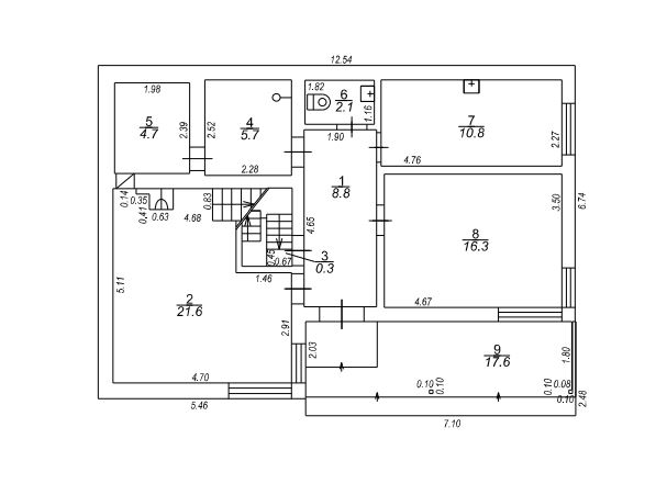
Galvenā māja – 246 m²
Plašs un pārdomāti veidots pirmais stāvs, kas nodrošina gan komfortu ikdienas dzīvei, gan ērtu viesu uzņemšanu.
+ Plaša, gaiša priekštelpa ar ietilpīgu iebūvētu skapi
+ Praktiska palīgtelpa zem kāpnēm mantu uzglabāšanai
+ Gaiša un mājīga viesistaba, kas harmoniski apvienota ar virtuves zonu
+ Liela, daudzfunkcionāla istaba, ko iespējams izmantot kā darba kabinetu, viesu istabu vai rotaļu telpu
+ Plaša vannas istaba
+ Tieša izeja uz labiekārtotu pagalmu ar terasi – ideāla vieta atpūtai un vasaras vakariem
+ Apsildāma garāža divām automašīnām
+ Tehniskā telpa ērtai mājas apsaimniekošanai
+ Atsevišķa viesu tualete
2. stāvs
Otrajā stāvā izveidoti divi pilnībā nodalīti dzīvokļi, kas lieliski piemēroti lielākai ģimenei, viesu uzņemšanai vai papildu ienākumiem no īres.
Vienistabas dzīvoklis:
+ Gaiša dzīvojamā istaba ar virtuves zonu
+ Iebūvēts skapis mantu uzglabāšanai
+ Vannas istaba ar dušas kabīni
Trīs istabu dzīvoklis:
+ Divas komfortablas guļamistabas
+ Plaša vannas istaba
+ Liela garderobes telpa
+ Atsevišķa, funkcionāla virtuve ar izeju uz terasi
+ Plaša viesistaba ar lodžiju

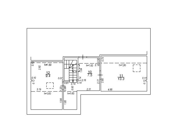
Otrā māja – 142 m²
1. stāvs
Mājīga un daudzpusīga ēka ar savu raksturu, kas lieliski piemērota gan viesu uzņemšanai, gan atpūtai.
+ Atsevišķa virtuve
+ Liela istaba dažādām vajadzībām
+ Iespaidīga kamīnzāle ar kāpnēm uz otro stāvu, radot īpašu mājīguma atmosfēru
+ Tualete
+ Tradicionāla malkas pirts ar dušu
+ Plašs pagrabs uzglabāšanai
2. stāvs (mansards)
+ Guļamistaba
+ Divas palīgtelpas, kuras iespējams pielāgot pēc vajadzības (kabinetam, garderobei vai noliktavai)

Īpašuma priekšrocības
✔ Divas mājas vienā īpašumā
✔ Iespēja izīrēt dzīvokļus vai daļu īpašuma
✔ Plašas telpas un daudzveidīgs plānojums
✔ Garāža divām automašīnām
✔ Pirts un kamīnzāle
✔ Terase un pagalms atpūtai.

Atrašanās vieta
+ Pastaigas attālumā no LIDL un citiem lielākajiem veikaliem
+ Netālu bērnudārzi un skolas
+ Ērta sabiedriskā transporta satiksme

Šāds īpašums tirgū parādās reti – lieliska iespēja apvienot dzīvošanu ar investīciju.

  • Apdare: stāvoklis ļoti labs, flīžu grīda, lamināta grīda
  • Aprīkojums: iebūvēta virtuve, cepeškrāsns, trauku mazgājamā mašīna, mikroviļņu krāsns, iebūvēti sienas skapji, uzstādīta santehnika, siltās grīdas vannasistabā, vanna, duša, dvieļu žāvētājs, veļas mašīna, pirts / sauna, kamīns, balkons/lodžija, terase
  • Plānojums: istabas gan izolētas gan caurstaigājamas, vannasistaba un wc atsevišķi, vannasistaba un wc kopā
  • Ēkas raksturojums: namrunis, pakešu logi, privātmāja
  • Atrašanās vieta: tuvumā mežs, tuvumā veikali un kafejnīcas, tuvumā skolas un bērnudārzi, ērta sabiedriskā transporta kustība
  • Autostāvvieta: garāža
  • Komunikācijas: gāzes apkure, autonoms apkures katls, pieejams optiskais internets, pilsētas ūdens apgāde, pilsētas kanalizācija
  • Drošība: metāla durvis, pieejama signalizācija, slēgta kāpņu telpa, slēgta teritorija, slēgts pagalms
Īpašuma ID numurs: 66602

Īpašums kartē

Inese Kreituse
Inese Kreituse Aģents
Sazināties ar aģentu:
  • Drukāt