Продают домовладение, улица Jūrkalnes, Šampēteris / 350000€

Местонахождение:Rīga, Kreisais krasts, Šampēteris
Улица:Jūrkalnes
Площадь:255 м²
Площадь земли:1300 м²
Цена:350 000 € (1 372.6 €/м²)

Описание объекта

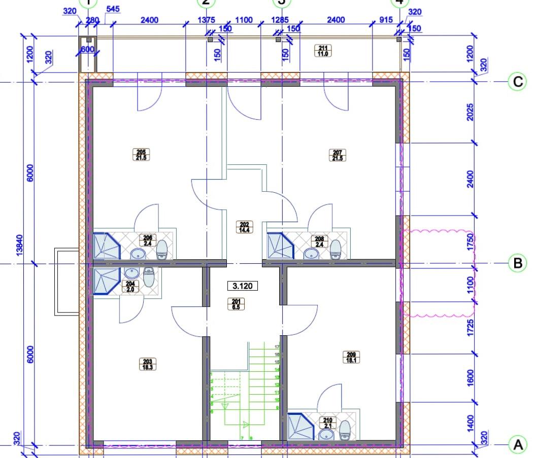
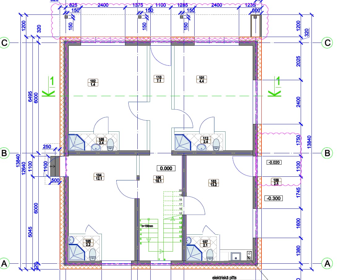
Доходный дом на улице Юркалнес

Продаётся доходный дом с превосходным расположением, всего в нескольких минутах езды от аэропорта Риги. Здание идеально подходит как для краткосрочной аренды, так и для долгосрочной сдачи квартир, обеспечивая стабильный и разнообразный доход.
В доме расположены восемь отдельных квартир, каждая с собственной ванной комнатой. В помещениях выполнена белая отделка с тёплыми полами (шаг 10 см, три независимых контура с индивидуальной регулировкой). При необходимости возможно завершить полную отделку- доступна строительная бригада и индивидуальный подход, все детали можно согласовать по договорённости.

Для дополнительного комфорта предусмотрена просторная зелёная зона, где можно обустроить террасы или балконы, что сделает проживание здесь ещё более привлекательным.

  • Отделка: белая отделка
ID номер объекта: 65559

Объект на карте

  • Карта Bing
  • Bing birds eye
  • Карта Openstreet
Eduards Strēlis
Eduards Strēlis Агент
Связаться с агентом:
  • Распечатать