Продают дом, улица Rītausmas, Mārupe / 300000€

Местонахождение:Mārupes novads, Mārupe
Улица:Rītausmas
Количество комнат:4
Площадь:167.5 м²
Площадь земли:170 м²
Цена:300 000 € (1 791 €/м²)

Описание объекта

Продаётся современная секция таунхауса в Марупе.

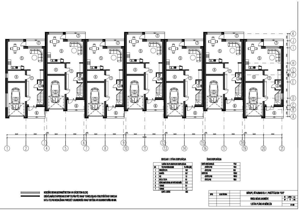
Недвижимость состоит из двух этажей общей площадью 175 м², включая просторные зоны для отдыха на открытом воздухе — террасы и балконы общей площадью 28 м².

1-й этаж (85,4 м²): просторная гостиная, совмещённая с кухней, ванная комната с душем, хозяйственное помещение, гараж, выход на террасу.

2-й этаж (89,6 м²): три отдельные спальни, ванная комната с каменной ванной, два балкона.

Дом продаётся с полной внутренней отделкой (включая сантехнику, встроенную кухню и светильники) и благоустроенной территорией — мощёные подъездные дорожки, автоматические ворота и зелёный газон уже включены в цену.

Проект состоит из 7 секций. Дома построены из газобетонных блоков, перекрытия — железобетонные. Отопление обеспечивают эффективные и экономичные тепловые насосы “Ariston”. Установлена система рекуперации воздуха.

Почему стоит выбрать Марупе для нового дома:

Безопасная, дружелюбная для детей среда с множеством возможностей для активного отдыха и общественных инициатив.

Удобный доступ к образованию и досугу — школы, музыкальные и спортивные мероприятия находятся поблизости.

Потенциал развития — самоуправление активно развивает и расширяет образовательную инфраструктуру, создаёт новые возможности.

Рига находится совсем рядом, обеспечивая доступ к работе, культуре и всем необходимым услугам.

Чтобы узнать больше или договориться о просмотре — звоните!

  • Отделка: состояние очень хорошее, высококачественный ремонт и отделка, окончательная отделка, плиточный пол, паркетный пол
  • Оборудование: встроенная кухня, духовка, посудомоечная машина, частично меблирован, установлена сантехника, ванна, душ, пол с подогревом, балкон/лоджия, терраса
  • Характеристика здания: пакетные окна, рядный дом, новый проект
  • Автостоянка: гараж
  • Коммуникации: автономный отопительный котел, доступен интернет, доступно телевидение, городское водоснабжение, городская канализация
  • Безопасность: закрытая территория
ID номер объекта: 66801

Объект на карте

Elīna Garda
Elīna Garda Агент
Связаться с агентом:
  • Распечатать